Search Units

Price Range

Min:

Max:

Rooms
Bathrooms
Finish type
Area Range

Min:

Max:

Amenities

الرئيسيه / المطورين / Plaza Gardens Developments / رودس الساحل الشمالي / ستوديو

ستوديو - رودس الساحل الشمالي

location Icon

Egypt, North Coast, sidi Heneish

1
1
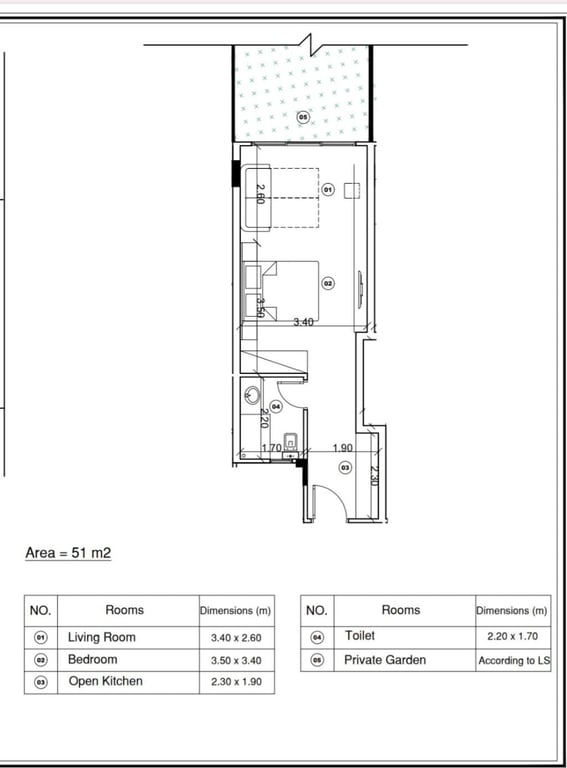
51 م2
بدءا من 3,200,000 جنيه
بدءا من 3,200,000 جنيه
Under construction
Studio
تسليم فوري

بلازا جاردنز للتطوير العقاري

تأسست الشركة في بداية عام 2013 مع خبرة تزيد عن 15 عامًا في مجال البناء والتطوير. فتسعى دائمًا إلى تحقيق أعلى مستوى من الجودة لتلبية توقعات عملائها بأفضل الطرق الممكنة من خلال تقديم مجتمعات متكاملة مع فرص استثمار عالية الجودة لأصحاب المشاريع التجارية والسكنية.

رودس الساحل الشمالي

هو منتجع ساحلي يمتد على مساحة 150 فدانًا، بنسبة بناء أقل من 10%، ليمثل وجهة سياحية فريدة تجمع بين جمال الطبيعة والرفاهية، فهو يعتبر مزيجًا مثاليًا بين التنوع والترفيه، مما يتيح للزوار فرصة استكشاف مجموعة متنوعة من التجارب الاستثنائية.

يحتوي المنتجع على مناطق متعددة الاستخدامات بدءًا من الفنادق الفاخرة وصولًا إلى الشاليهات والكبائن المجهزة بالكامل، وكل هذا مع إطلالات استثنائية على البحر المتوسط.

كما يتيح المشروع أيضًا فرصة للتسوق، حيث يمكنك استكشاف مراكز التسوق المميزة والاستمتاع بمجموعة متنوعة من المطاعم والمقاهي الراقية.

 

المرافق والخدمات

  • فندق 5 نجوم.
  • كريستال لاجونز - حمامات سباحة - اكوا بارك.
  • ملاعب رياضية - مسارات للركض والدراجات.
  • سينما - كلوب هاوس - مطاعم وكافيهات.
  • مسجد.

أنواع الوحدات

يقدم المشروع أنواعًا مختلفة من الوحدات بمساحات تبدأ من:

  • 51 م (ستوديو).
  • 59م(شاليه).

الموقع

يقع المشروع بسيدي حنيش في الساحل الشمالي عند الكيلو 270 بالقرب من:

  • الماظة باي.
  • سيلفر ساندس الساحل الشمالي.
Clock Icon

منذ 2013

Home Icon

4 مشاريع المطور

بحاجة لشراء؟
اتصل بنا
واتساب

وسائل الراحة

Project Facilities Project Facilities
Cinema
Prayer Areas Prayer Areas
Mosque
Restaurants & Cafes Restaurants & Cafes
Hotel Hotel
5-Star Hotel
Tracks Tracks
Jogging Track
Tracks Tracks
Bike Tracks
Lakes Lakes
Crystal Lagoon
Swimming Pools Swimming Pools
Aqua Aqua
Aqua Park
Sports Activities Sports Activities
Club House
Sports Courts Sports Courts

مخطط الوحة

floor-0
floor-1

خطط الدفع

45,333 \ شهري 5 سنوات 480,000 جنيه الدفعة الأولى
46,963 \ شهري 5 سنوات 497,250 جنيه الدفعة الأولى

موقع الوحدة

فيديو الوحدة

وحدات مشابههة