Search Units

Price Range

Min:

Max:

Rooms
Bathrooms
Finish type
Area Range

Min:

Max:

Amenities

Home / Developers / Plaza Gardens Developments / Audaz

Audaz

location Icon

New Capital City, Financial District

Starting From 4,261,690 EGP
Ready to Move
mixed-used
Immediate delivery

Plaza Gardens Development

Established at the beginning of 2013 with more than 15 years of experience in the field of construction and development, the company always strives to achieve the highest level of quality to meet the expectations of its customers in the best possible way by offering integrated communities with high-quality investment opportunities for commercial and residential project owners.

Audaz

It is the first double building in the New Administrative Capital in the financial district, spanning an area of 16,800 square meters. It houses administrative, medical, and commercial units to meet all needs. The mall was built with two main facades:

The first: It is 94 meters wide and is located near the Diamond Hotel, the largest city for arts and culture in the world, and the entrance to the government district.

The second: It is 45 meters wide and is located near the largest gardens in the financial district.

Amenities & Facilities 

  • Security system.
  • Facility management system.
  • Surveillance cameras.
  • Prayer areas.
  • ATMs.
  • Cafes and restaurants.
  • Outdoor food court.
  • Sky lounge.
  • Smoking areas.
  • Radiology center.
  • Labs.
  • Gym.

Unit Types

  • Commercial.
  • Administrative.
  • Medical.

Location

The project is located in the New Administrative Capital in the financial district, near:

  • Expo City.
  • Mega Mall.
  • City of Culture and Arts.
  • The Opera.
  • Government ministries and districts.
 logo

Plaza Gardens Developments

Clock Icon

Since 2013

Home Icon

4 Projects

Need to buy?
Call Us
WhatsApp

Amenities

Project Management Project Management
Facility Management
Security System Security System
CCTV System
Smart System Smart System
Internet & Wi-Fi
Project Facilities Project Facilities
Atms
Lounge Lounge
Sky Lounge
Lounge Lounge
cigar Lounge
Medical Services Medical Services
Radiology center
Medical Services Medical Services
clinics and Laboratories
Prayer Areas Prayer Areas
Prayer Area
Restaurants & Cafes Restaurants & Cafes
Restaurants & Cafes Restaurants & Cafes
Food Court
Health & Fitness Health & Fitness
Gym

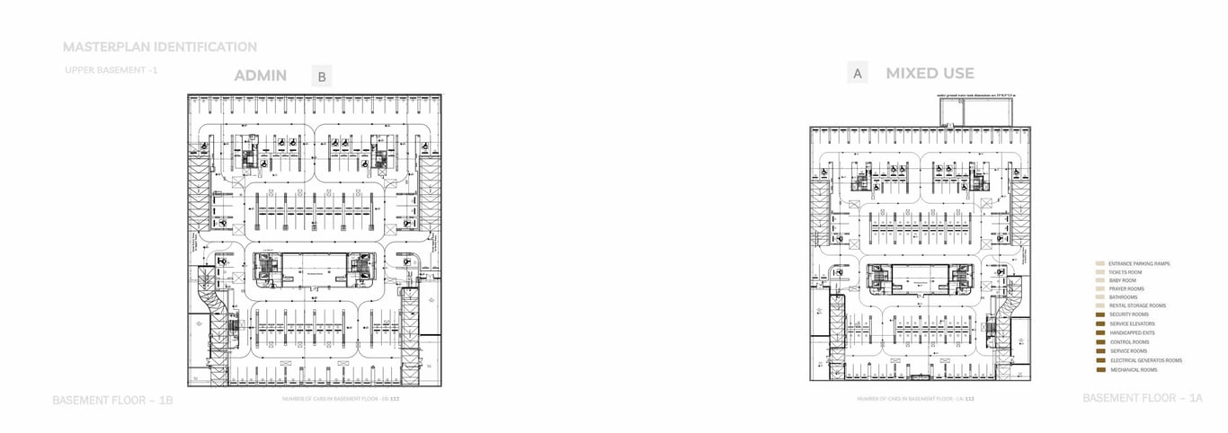
Master / Floor Plan

floor-0
floor-1
floor-2
floor-3
floor-4
floor-5
floor-6

Payment Plans

15% Down Payment 7 Years
20% Down Payment 8 Years

Project Map

Project Video

Project Updates

Available Units