Search Units

Price Range

Min:

Max:

Rooms
Bathrooms
Finish type
Area Range

Min:

Max:

Amenities

الرئيسيه / المطورين / Al-Borouj Misr / سيكستي أيكونيك تاور

سيكستي أيكونيك تاور

location Icon

New Capital City, CBD District

بدءا من 10,756,400 جنيه
Under construction
mixed-used
التسليم في 2026

البروج مصر للتطوير العقاري

تأسست شركة البروج في مصر عام 2006 وتتميز بخبرتها الواسعة في مجال التطوير العقاري لذلك تعد من إحدى الشركات العقارية الرائدة في مصر حيث أن الشركة تمتلك عدة شركات وهي ( ايدج هولدينج - إنفينيتي - اوزوريت ).

قامت الشركة بتنفيذ العديد من المشاريع الناجحة سواء كان سكني أو تجاري في مختلف مناطق مصر كما تسعى دائمًا إلى تقديم مشاريع عالية الجودة لتلبي جميع احتياجات العملاء وتحقيق تطلعاتهم.

سيكستي أيكونيك تاور

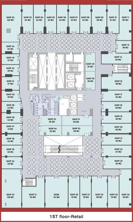
هو أحد مشروعات شركة البروج مصر تم إنشاؤه بموقع استراتيجي في العاصمة الإدارية الجديدة وهو مجمع متعدد الاستخدامات صممُ بدقة وبمواصفات عالمية ويتمتع بإطلالة خلابة على النهر الأخضر يمتد المشروع على مساحة 8000 متر ويوفر وحدات تجارية، إدارية، طبية يتكون المشروع من 42 طابق وينقسم إلى:

  • الدور الأرضي - أول - ثاني: تجاري.
  • الدور الثالث - الرابع: طبي.
  • من الخامس إلى السابع والعشرين: إداري.
  • الدور الثامن والعشرين: خدمات متنوعة علي البرج.
  • من الدور التاسع والعشرين : الثاني والثلاثين: شقق فندقية.
  • من الدور الثالث والثلاثين: الدور الثاني والأربعين: فندق.    

المرافق والخدمات 

  • محلات تجارية. 
  • فود كورت.
  • مساحات خضراء.
  • ماكينة الصراف الآلي.
  • عيادة للطوارئ
  • صيدلية.
  • حضانة.
  • مخبز.
  • سوبر ماركت.
  • جراج تحت الارض.
  • أمن.

أنواع الوحدات 

يوفر المشروع أنواع مختلفة من الوحدات بمساحات تبدأ من:

  • 32م (تجاري).
  • 54م (إداري).
  • 54م (شقق فندقية).

الموقع 

يقع المشروع بموقع استراتيجي في العاصمة الإدارية الجديدة وعلي بعد:

  • 10 دقائق من الحي الحكومي.
  • 10 دقائق من النهر الأخضر. 
  • 5 دقائق من فندق الماسة.
  • 5 دقائق من محطة المونوريل.

 

 logo

Al-Borouj Misr

Clock Icon

منذ 2006

Home Icon

5 مشاريع المطور

بحاجة لشراء؟
اتصل بنا
واتساب

وسائل الراحة

Security System Security System
24/7 Security
Smart System Smart System
Smart control Access
Parking Parking
Underground Parking
Project Facilities Project Facilities
Atms
Medical Services Medical Services
Pharmacy
Medical Services Medical Services
Emergency Clinics
Education Services Education Services
Nursery
Commercial Activities Commercial Activities
Bakery
Commercial Activities Commercial Activities
Supermarket
Commercial Activities Commercial Activities
Retail Stores
Restaurants & Cafes Restaurants & Cafes
Restaurant
Restaurants & Cafes Restaurants & Cafes
Food Court
Restaurants & Cafes Restaurants & Cafes
Plaza
Natural Views Natural Views
Green Areas

رئيسي / مخطط الطابق

floor-0
floor-1
floor-2
floor-3

خطط الدفع

15% الدفعة الأولى 7 سنوات

موقع المشروع

فيديو المشروع

الوحدات المتاحة